PROPERTY
不動産情報
トレジャーライフ富松町2丁目
- 尼崎市
- 新築一戸建て

分譲価格:4,980万円(税込)
阪急神戸線「武庫之荘駅」徒歩14分
尼崎市富松町2丁目
間口広々!土地約32.3坪!屋上庭園の家
スケルトン階段と吹抜けが魅力の広々LDK
- 安心快適な大阪ガスのエネファーム発電ユニットENETO採用
- ヌック・ミストカワック10年あんしん保証付
- 4LDK+車庫2台+駐輪
- 間口広々
- 土地32.3坪
- 外壁37mmスーパーボード
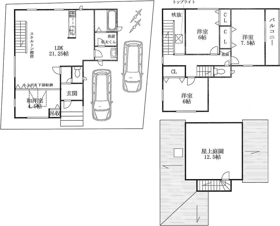
- 広々屋上庭園12.5帖!
- アイランドキッチン
- 床暖4カ所
- 省エネ5等級
- 1次消費エネ6等級
- スケルトン階段
- 電動シャッター
- ZEH水準住宅
- 乾太くん
- スマートキー
- EV車用コンセント
- LOW-Eガラス
- フラット35S
- ミストサウナ
- 浴室テレビ
- 浴室乾燥暖房
- ペアガラス
- 食器洗い機等豪華仕様
区画・プラン
DIVISION & PLAN
間取り・プラン

アクセス
ACCESS
- 阪急「武庫之荘」駅から
大阪梅田駅へ
- 直通15分
- 阪急「武庫之荘」駅から
神戸三宮へ
- 約21分
通勤シミュレーション
-
8:23現地
-
8:37阪急「武庫之荘」駅
-
9:00阪急「大阪梅田」駅
※掲載の所要時間は日中平常時のおおよそもので、乗り換え・待ち時間は含まれておりません。また、ダイヤ等の変更で所要時間が変更になっている場合がございます。
物件概要
OUTLINE
| 物件種別 | 新築一戸建て |
|---|---|
| 所在地 | 尼崎市富松町2丁目 |
| 交通 | 阪急神戸線「武庫之荘駅」徒歩14分 |
| 販売価格 | 4,980万円(税込) |
| 間取り | 4LDK+車庫2台+駐輪 |
| 販売区画数(戸数) | 1戸 |
| 敷地面積 | 124.24m²(私道面積含む) |
| 延床面積 | 108.13m²(吹抜け・PH部分含む) |
| 構造 | 木造スレート葺2階建 |
| 用途地域 | 第一種中高層 |
| 権利形態 | 所有権 |
| 建ぺい率/容積率 | 60%/200% |
| 地目 | 宅地 |
| 学校区 | 尼崎北小学校・塚口中学校 |
| 備考 | 市街化区域、第2種高度地区 |
資料請求
REQUEST DOCUMENTS
細心の注意を払って個人情報を管理・保護しております。お客様からいただくご連絡の内容につきましては、ご回答を差し上げるため、又は弊社からお客様へのより良いサービスのご提供などへの参考とさせていただく目的以外には利用いたしません。詳しくは「個人情報保護方針」のページをご参照ください。



