PROPERTY
不動産情報
トレジャーライフ宮内町II
- 尼崎市
- 新築一戸建て

分譲価格:4,280万円(税込)
阪神本線「出屋敷駅」徒歩4分
尼崎市宮内町2丁目
南向間口広々車庫2~3台可!屋上庭園の家
床暖房、乾太くん等快適設備!ZEH水準!
- ZEH水準省エネ住宅
- 安心快適な大阪ガスのエネファーム発電ユニットENETO採用
- ヌック・ミストカワック10年あんしん保証付
- 土地約30坪
- 間口広々車庫2~3台!
- 駅歩4分!
- 乾太くん!
- 南向き
- 屋上庭園付
- スケルトン階段
- 1F電動シャッター
- アイランドキッチン
- エネファーム
- 地盤10年保証
- 建物10年保証
- EV車対応外部コンセント
- ミストサウナ・浴室TV
- 4か所(洗面にも) 床暖
- 断熱性能5等級
- 1次消費エネ6等級
- 外壁は37mmスーパーボード
- フラット35S
- 玄関錠タッチキーシステム
- 浴室乾燥暖房
- 床暖房
- LOW-Eペアガラス
- 食器洗い機等豪華仕様
区画・プラン
DIVISION & PLAN
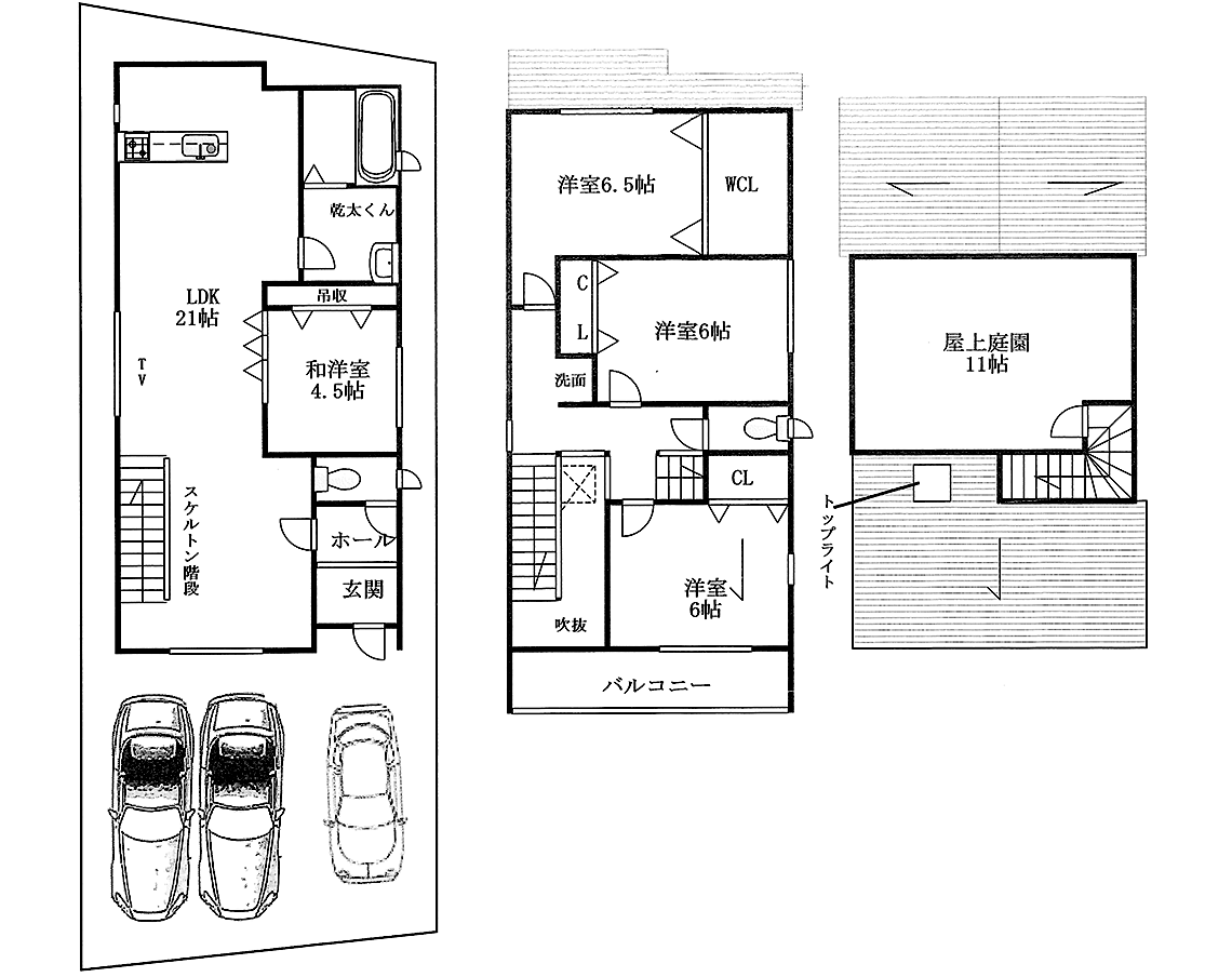
間取り・プラン

アクセス
ACCESS
- 阪神「出屋敷」駅から
大阪梅田駅へ
- 直通29分
- 阪神「出屋敷」駅から
神戸三宮へ
- 約35分
通勤シミュレーション
-
8:28現地
-
8:32阪神「出屋敷」駅
-
8:56阪神「大阪梅田」駅
※掲載の所要時間は日中平常時のおおよそもので、乗り換え・待ち時間は含まれておりません。また、ダイヤ等の変更で所要時間が変更になっている場合がございます。
物件概要
OUTLINE
| 物件種別 | 新築一戸建て |
|---|---|
| 所在地 | 尼崎市宮内町2丁目 |
| 交通 | 阪神本線「出屋敷駅」徒歩4分 |
| 販売価格 | 4,280万円(税込) |
| 間取り | 4LDK+車庫2~3台 |
| 販売区画数(戸数) | 1戸 |
| 敷地面積 | 110.54㎡(私道面積含む) |
| 延床面積 | 約103.50㎡(吹抜け・PH部分含む) |
| 構造 | 木造スレート葺2階建 |
| 用途地域 | 1種住居地域 |
| 権利形態 | 所有権 |
| 建ぺい率/容積率 | 60%/200% |
| 地目 | 宅地 |
| 接道状況 | 南側幅員4mに約6.12m面す |
| 学校区 | 竹谷小学校 ・中央中学校 |
| 備考 | 市街化区域、第3種高度地区 |
資料請求
REQUEST DOCUMENTS
細心の注意を払って個人情報を管理・保護しております。お客様からいただくご連絡の内容につきましては、ご回答を差し上げるため、又は弊社からお客様へのより良いサービスのご提供などへの参考とさせていただく目的以外には利用いたしません。詳しくは「個人情報保護方針」のページをご参照ください。



